Immediately impressive this impressive brand new house and land package in Austral NSW offers space and style with its flowing floor plan featuring a modern open plan living area including stylish kitchen with upgraded appliances and stone bench tops overlooking the family and meals area.
INCLUSIONS:
* Linear 90mm Cornice Throughout Home (Excludes bathroom, Ensuite, Powder Room and WC)
* Corinthian SPLA6 67mm x 18mm Half splayed pine painted architraves and skirting.
* 2x2040mm Sliding Door to Family and Balcony.
* Provide 600mmx600mm Tile, Flooring to Entry, Lounge, Living, Kitchen, Walk-in-Pantry and Dining (Ground Floor) Provide Wall to Wall Quality Carpet to Staircase and First Floor.
* Daikin Ducted Revise Cycle Air-condition.
Disclaimer: The above information has been gathered from sources that we believe are reliable. However, we cannot guarantee the accuracy of this information, and we do not accept responsibility for its accuracy. Any interested parties should rely on their own inquiries
Pictures are for illustration purpose only.
Features
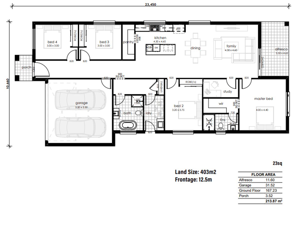
Floor Plan
Floorplan 1
